




Bio-Schaukäserei Münster
Neubau einer Bio-Schaukäserei sowie Geschäftsräume am Stadthafen
Wettbewerb 1. Preis 2013
Realisierung 2015
Bauherr Hafengesellschaft mbh 2012
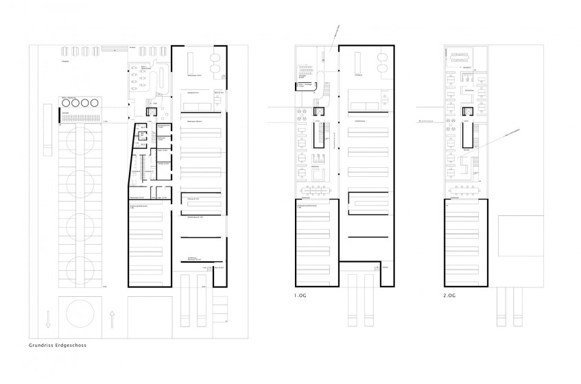
Eine wesentliche Zielvorstellung der Familie Söbbeke für Ihre Käserei am Hafen in Münster ist, dass neben der Produktion und der Vermarktung von Biokäse an dieser Stelle ein Ort der Fortbildung und des Austausches entsteht. Dieser Ansatz dient dem Entwurf als konzeptionelle Basis.
Durch eine offene Büro- und Arbeitslandschaft entsteht Transparenz und eine kommunikative Grundstimmung. Die visuelle Verzahnung zwischen Produktion und Vertrieb verstärkt das Gemeinschaftsgefühl der Käsemacher. Der Besucher wird nicht auf eigenen Wegen geführt, sondern darf direkt in die Schnittstelle der Arbeitswelt eintauchen, um den gesamten Prozess zu erfassen.